Aller à :

  • Aller à la recherche
  • Aller au menu principal
  • Aller au contenu
0
  • Accueil
  • Qui sommes-nous ?
    • Entreprise
    • Dirigeants
    • Équipe
  • Notre raison d’être
  • Nos métiers
    • Vente
    • Location
    • Gestion
    • Syndic
  • Nos partenaires
    • Siab immo
    • Cabinet Thinot
  • Actualités
    • Emploi
    • Blog
  • Contact
    • Estimation vente
    • Demande de gestion
    • Demande de proposition de syndic
0
VotreRecherche
Dans un rayon de
Budget
entre et €
Min €
Max €
  1. Agence immobilière à Carnoux en Provence
  2. Vente
  3. Bouches du rhone
  4. Carnoux en provence
  5. Villa
  6. T4
  7. Carnoux en provence programme neuf livre cle en main villa t4 avec garage et terrain

Carnoux en Provence : Programme neuf livré clé en main Villa T4 avec garage et terrain Carnoux-en-Provence (13470)

Réf : 2867
Vendu

Présentation

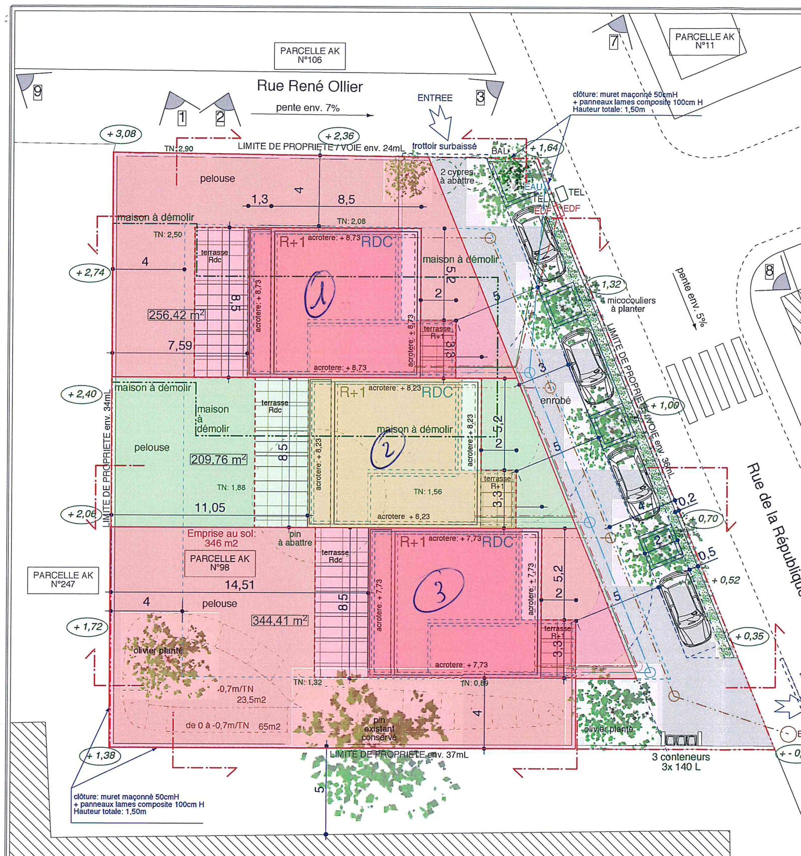
EXCLUSIVITE : à Carnoux en Provence, petit programme de 3 Villas neuves jumelles en R+1 sur cave, avec garage, d'environ 105m² habitables chacune avec jardin privatif.

Lot 3 : Villa mitoyenne au Nord, édifiée sur une parcelle d'environ 350m² - Elle se décompose :

- au sous sol d'une cave amménagée et isolée d'environ 70m²,

- au rez de chaussé : un garage, une entrée, une grande pièce de vie, wc

- à l'étage: 3 chambres, un dressing, 1 salle d'eau, 1 salle bain, wc.

Belles prestations, résidence sécurisée, Prestations haut de gamme.

Le tout sur une parcelle de terrain d'environ 345m².

Livraison clé en main prévue fin de premier trimestre 2021 au plus tard.

Les infos
essentielles

Caractérisque Valeurs
Code postal 13470
Surface habitable (m²) 100 m²
surface terrain 345 m²
Nombre de chambre(s) 3
Nombre de pièces 4
Nombre de niveaux 2

Les + du bien

Détails +

Caractérisque Valeurs
Nb de salle de bains 1
Nb de salle d'eau 1
Mode de chauffage Electrique
Type de chauffage Radiateur
Format de chauffage Individuel
Terrasse OUI
Murs mitoyens 1
Nombre de garage 1
Année de construction 2020

DPE

DPE GES

Copropriété

Caractérisque Valeurs
Copropriété OUI
Lot n° 3
nombre de lots 6
Nos outils
Imprimer Imprimer
Partager le bien
Calculatrice financière

* Champ obligatoire

Partager l'annonce

* champs obligatoires

Les informations recueillies sur ce formulaire sont enregistrées dans un fichier informatisé par La Boite Immo agissant comme Sous-traitant du traitement pour la gestion de la clientèle/prospects de l'Agence / du Réseau qui reste Responsable du Traitement de vos Données personnelles. La base légale du traitement repose sur l'intérêt légitime de l'Agence / du Réseau. Elles sont conservées jusqu'à demande de suppression et sont destinées à l'Agence / au Réseau. Conformément à la loi « informatique et libertés », vous disposez des droits d’accès, de rectification, d’effacement, d’opposition, de limitation et de portabilité de vos données. Vous pouvez retirer votre consentement à tout moment en contactant directement l’Agence / Le Réseau. Consultez le site https://cnil.fr/fr pour plus d’informations sur vos droits. Si vous estimez, après avoir contacté l'Agence / le Réseau, que vos droits « Informatique et Libertés » ne sont pas respectés, vous pouvez adresser une réclamation à la CNIL. Nous vous informons de l’existence de la liste d'opposition au démarchage téléphonique « Bloctel », sur laquelle vous pouvez vous inscrire ici : https://www.bloctel.gouv.fr Dans le cadre de la protection des Données personnelles, nous vous invitons à ne pas inscrire de Données sensibles dans le champ de saisie libre.
Ce site est protégé par reCAPTCHA, les Politiques de Confidentialité et les Conditions d'Utilisation de Google s'appliquent.

Partager avec vos proches

Facebook Facebook
Messenger Messenger
Twitter Twitter
WhatsApp WhatsApp
LinkedIn LinkedIn
Copier le lien Copier le lien
Détail des diagnostics énergétiques
DPE GES
DPE ANCIENNE VERSION
Se connecter
Espace transactions Espace copropriétaires Espace clients gérés Espace locataires
Page d'accueil
Adhérents

© 2026 | Tous droits réservés | Traduction powered by Google |

  • Nos honoraires
  • Plan du site
  • Mentions légales
  • Admin
  • Partenaires
  • Politique RGPD

Comme beaucoup, notre site utilise les cookies

On aimerait vous accompagner pendant votre visite. En poursuivant, vous acceptez l'utilisation des cookies par ce site, afin de vous proposer des contenus adaptés et réaliser des statistiques !

Paramétrer

Cookies fonctionnelsCes cookies sont indispensables à la navigation sur le site, pour vous garantir un fonctionnement optimal. Ils ne peuvent donc pas être désactivés.

Statistiques de visitesPour améliorer votre expérience, on a besoin de savoir ce qui vous intéresse !
Les données récoltées sont anonymisées.

?

Google Analytics

En savoir plus